Building Warrant Drawings
Building Warrant Drawings for ground and upper floors
BuildingWarrant2web

Ground floor plans accepted by Council

BuildingWarrant1web

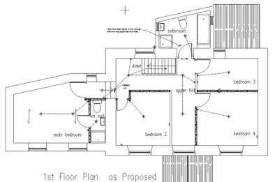
Upper floor plans accepted by the Council. Note later change accepted for sunroom velux windows